ホーム
園の特色
園の概要
園の生活
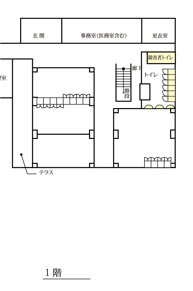
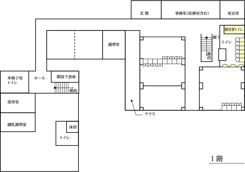
施設図
ブログ
定員245名
←右
左→
2F
1F
© 2020 片岡の里こども園 – 社会福祉法人優心会 –